Title Image

Projet Manon & Mathias

Aménagement d'une suite parentale
Le projet

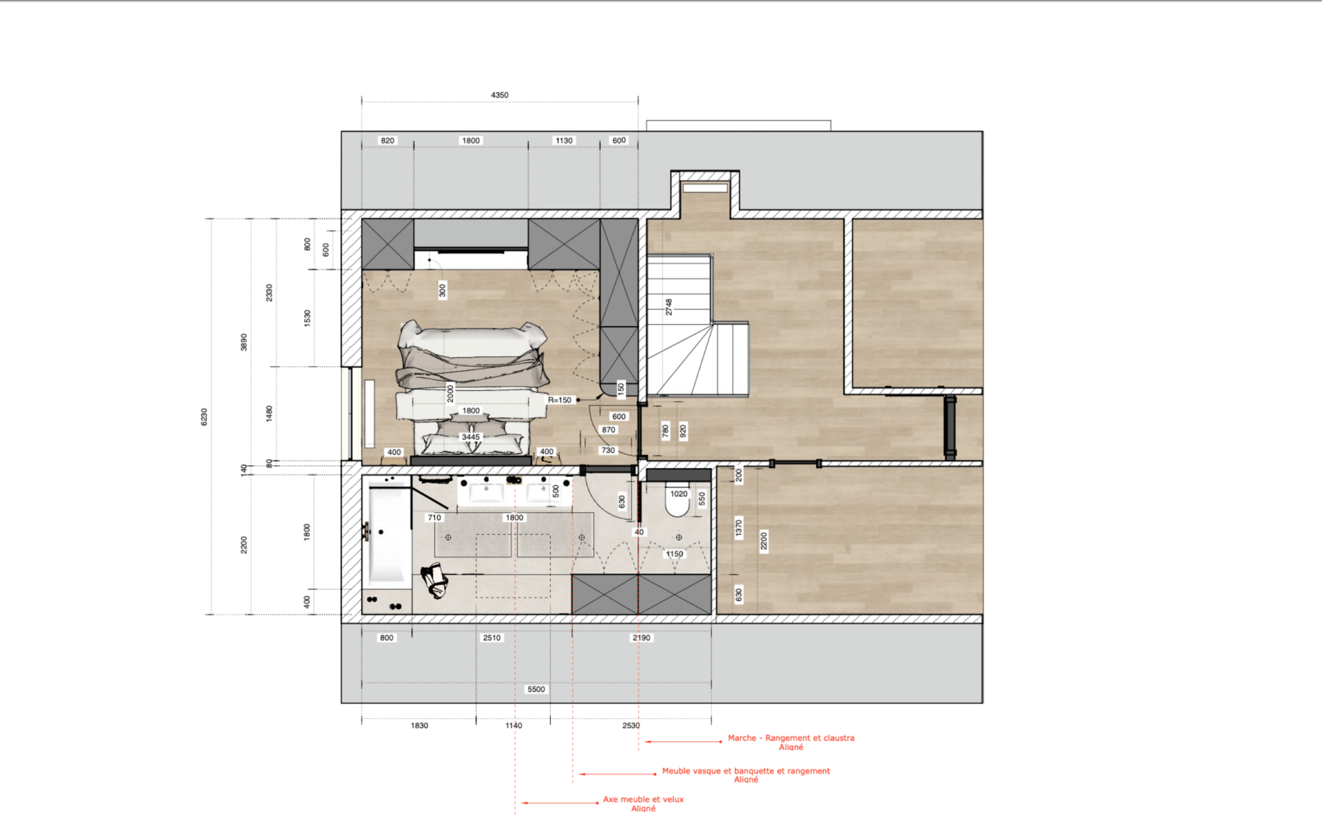
Nous avons accompagné nos clients dans la rénovation complète de tout l’étage de nuit de leur maison. Il s’agissait  principalement de repenser la suite parentale. Jusqu’ici, nos clients occupaient une grande chambre mansardée,  avec des rangements dans les sous-pentes, sans savoir exactement comment l’exploiter. En repensant le cloisonnement, nous avons pu intégrer dans le même espace une chambre, un grand dressing en L avec télévision, et une spacieuse salle de bain avec WC intégrés. L’ajout d’un Velux dans la salle de bain (anciennement des rangements mal exploités) a permis un apport de lumière considérable, changeant totalement la dynamique de la pièce. Un claustra dissimule les toilettes, du béton ciré enveloppe le sol de douceur, un mur en carrelage texturé habille la douche. Le meuble vasque sur mesure, son meuble miroir et la banquette revêtue de béton ciré exploitent la longueur de la pièce, sans entraver la circulation.

Côté chambre, le dressing se veut en courbes pour faciliter la circulation. Le détail des poignées dorées souligne l’élégance des matériaux, et la teinte de la tête de lit rappelle celle de la salle de bain.

Au même étage, nous avons également rafraîchit les chambres des enfants : installation d’un Velux, réalisation d’un dressing sur mesure, nouvelles peintures et remplacement du revêtement de sol, en complément de la rénovation de toutes les techniques (électricité, chauffages et sanitaires).

© photos : Elodie Deceuninck

Catégorie :

Type de prestation :

Carnet d'aménagement et Suivi de chantier

Lieu :

Brabant flamand, Belgique

Photos avant/après
Extrait de la prestation