Title Image

Projet Sophie & Diego

Aménagement et décoration d'une nouvelle construction
Le projet

Dans ce projet d’ampleur, nous avons accompagné nos clients dans l’entièreté du processus de construction de leur nouvelle maison (constructeur Mi Casa). Sur base des premiers plans, nous avons peaufiné les agencements, le cloisonnement, amélioré la circulation et pensé les rangements. Pour les matériaux, nous les avons accompagnés dans tous les choix de revêtements et de coloris. Tout au long du chantier et des travaux, nous avons épaulé leurs décisions, participant à la simplification de leurs choix et appuyées par les rendus 3D de nos propositions.

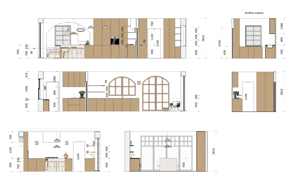
Au rez-de-chaussée, nous avons travaillé sur les deux entrées, l’une plus formelle, de réception, élégante et impressionnante par sa hauteur cathédrale ; l’autre plus fonctionnelle, pour le quotidien et l’accès au jardin, inspirée des mudrooms outre-atlantiques avec son carrelage effet bejmat. Au même niveau, nous avons développé la cuisine et son arrière-cuisine, pensée dans la continuité. Le sol en béton ciré vient illuminer cette pièce de vie à part entière, l’ilot et sa grappe de luminaires en fait un réel centre névralgique de la vie à la maison. Côté salon, une bibliothèque met en avant les trésors ramenés des multiples voyages de nos clients, les matières et les couleurs se font chaleureuses et lumineuses dans une ambiance nomade chic. Un bureau et un salon TV complètent ce niveau.

À l’étage supérieur, nous nous sommes concentrées sur l’aménagement de la suite parentale, avec notamment un dressing dont la circulation était clé, et une salle de bain mansardée, dans laquelle un meuble vasque tout en longueur vient souligner le volume et apporter un maximum de rangement. Au même étage, nous avons également accompagné nos clients sur un second bureau, dans une ambiance bleu nuit et avec une bibliothèque de souvenirs d’Afrique, ainsi que la buanderie.

Cette collaboration s’étalant sur plusieurs mois a permis à nos clients d’aboutir dans chaque moindre détail, leur projet de construction neuve, soignant l’esthétique et la cohérence entre les espaces et les étages, pour une harmonie et une ambiance douce et chaleureuse au quotidien.

© photos : Elodie Deceuninck

Type de prestation :

Carnet d'aménagement et Suivi de chantier

Lieu :

Région bruxelloise, Belgique

Photos pendant/après
Extrait de la prestation